黄金七公里丨武汉二七滨江商务区(汉口滨江国际商务区二七核心区)发展大盘点
2020-10-30 14:28:47 点击:
▲二七滨江商务区早期效果图
是国际总部型商务区?还是滨江豪宅聚集区?从二七滨江商务区诞生以来,对于它定位和前景的争论一直没有停止。
但不可否认的是,二七滨江商务区的热度持续走高,随着项目建设的徐徐推进和区域规划的再次升级,汉口滨江国际商务区成为衔接武汉老租界和长江新城的纽带,在长江经济带中的地位愈加重要,可谓是武汉最具未来想象空间的区域之一。
本文我们将从二七滨江商务区的板块定位、发展历程、规划动态、重点项目等方面,全面梳理盘点区域发展。
01
规划范围与板块定位
二七滨江商务区,正式称谓为汉口滨江国际商务区二七核心区,南起长江二桥,北至二七大桥,东临沿江大道,西临解放大道,规划总用地面积约83公顷,沿江长度约3.4公里。
发展定位为依托武汉天地建筑群和二七片高档商务楼宇,主要发展总部经济、金融服务、高端商务、文化创意等,形成国际企业总部集聚、购物中心和酒店齐备,国际社区及生活娱乐配套的高品质功能组团。
就功能区规划上看,汉口滨江国际商务区二七核心区属汉口滨江国际商务区的组成部分。汉口滨江国际商务区为江汉路、京汉大道、解放大道、二七长江大桥汉口段、沿江大道的合围区域,规划占地5.4平方公里,以芦沟桥路为界,上游打造汉口历史文化风貌街区,下游打造汉口滨江国际商务区二七核心区,打造历史和现代相辉映、文化和经济相融合的国际性企业总部聚集区、国内一流的滨江高端商务区。
▲汉口滨江国际商务区示意
02
发展历程与“北进”新蓝图
二七滨江商务区的“二七”名字源于1923年的“二七大罢工”事件,又称“京汉铁路工人大罢工”,二七纪念馆就在片区内解放大道旁。
片区用地主要权属单位原为“国字头”骨干企业江岸车辆厂,如福建社区、徐州新村等地最早一批居民都是1950年之后重建江岸车辆厂的工人及家属。片区是全市二环内临江一线可供集中开发、整体打造的稀缺土地资源。
按照“老汉口、新江岸”的建设理念,围绕汉口沿江商务区建设的构想,自2010年起,二七片区正式启动大规模旧城改造、征地与拆迁工作。
2012年,承接国家中心城市和国际化大都市的发展要求,武汉全力推进汉口沿江商务区建设,市政府组织编制了《汉口沿江商务区实施规划》,明确规划由南向北依次形成老汉口文化商旅区、三阳国际规划设计总部区、二七国际企业总部商务核心区三大核心功能片区。二七商务核心区也成为武汉市第一个功能区实施规划试点项目。
2013-2014 年,《二七商务核心区实施性规划》和《二七商务区核心区修建性详细规划》的编制工作先后完成,规划获得批复后全面转向运营实施阶段。
▲二七商务核心区修建性详细规划(建筑部分)
▲二七商务核心区早期效果图
2015年年初,二七滨江商务区核心区已拆迁完毕,江岸区面向国内外顶尖企业开展招商选商。同年11月,区政府联合美国AS+GG、CBRE等知名设计机构,启动五、六期城市设计编制工作。
亦是同年2月,二七滨江商务区首宗地块现身武汉土地交易中心出让公告,历经多次延期、撤牌再挂牌,至7月由新世界地产以14.75亿元购得,楼面地价3550元/㎡。而由二七滨江12号地块中拆分出的住宅地块P(2015)050号于6月底由珠海华发以总价40.05亿元,楼面价13388元/㎡拿下,成为当时武汉单价地王。二七滨江商务区拉开建设大幕。
2016-2017年,绿城、万科纷纷以代建、收益权合作等方式入局,国华人寿、中信泰富、泰康人寿相继拿地,核心区土地出让基本完成,二七滨江商务区成为一片知名企业云集的开发热土。
▲汉口滨江国际商务区近年已出让地块情况一览
2018年,汉口滨江国际商务区五期地块已进入拆迁及供地阶段,中诚信、中海等企业拿地入驻。六期、七期规划也开始展露,当年政府招商信息显示,六期由二七长江大桥至汉堤路,七期由汉堤路至堤边路,总占地面积约1600亩。
2019年5月,江岸区召开汉口滨江国际商务区“北进西扩”工作推进会,提出为有效对接长江新城发展战略,将商务区沿长江岸线向北、跨过解放大道向西拓展,六期加快征收,七期征收启动。
前不久的10月27日,汉口滨江国际商务区七期旧城区改建项目房屋征收补偿方案征求意见出炉,汉口滨江国际商务区二七核心区及六期、七期沿江绵延7公里的发展蓝图愈发清晰……
▲汉口滨江国际商务区二七核心区及六、七期范围示意
03
八大重点项目一览
随着新世界、国华人寿、泰康人寿、中信泰富、中诚信、华发、绿城、万科等知名企业陆续进驻,二七滨江商务区出让土地超过960亩,开发规模超过400万方,其中商务商业建筑面积超过200万方。
目前大部分项目已经动工,随着各项目住宅部分的销售推进及后期出让地块拿地要求的愈趋严格,商务楼宇的建设启动也将指日可待。
▲汉口滨江国际商务区二七核心区重点项目落位示意
武汉周大福金融中心
地块编号:P(2015)063
拿地时间:2015年7月28日
楼面地价:3550元/㎡
项目是二七滨江商务区的地标建筑。2015年7月周大福以总价14.75亿元拿下P(2015)063号地块,该地块出让历经波折,最终拿地要求建筑物主体塔楼整体总高度不低于600米,规划建成一座涵盖超高层办公、商业及住宅等多用途的建筑物,结合艺术、人文、自然元素,运用立体城市、可持续生态理念打造一座未来的国际性地标及城市名片。
▲武汉周大福金融中心早期效果图
根据2019年5月项目规划方案批前公示,项目总建筑面积约65.09万方,其中办公约25万方,商业约3.95万方,住宅约7.97万方,原648米的主楼降为475米,其中主体部分85层442.65米,此外项目还包括2栋52层高度为200米的超高层住宅楼及2-3层的商业裙房,至今项目仍未正式开工。
▲武汉周大福金融中心效果图
武汉滨江国际金融中心(伟鹏万科御玺滨江)
地块编号:P(2016)023
拿地时间:2016年5月5日
楼面地价:9038元/㎡
▲地块规划用地范围
2016年5月伟鹏集团以总价39亿元竞得P(2016)023号地块,项目整体命名为武汉滨江国际金融中心,6月武汉万科公司通过收益权合作方式获取该项目住宅部分100%权益,合作开发住宅部分,住宅命名为伟鹏万科·御玺滨江。
项目总占地面积约7.07万方,总建筑面积约46.35万方,住宅部分建筑面积约21.71万方,包含9栋共970套住宅;商务、商业部分建筑面积约21.44万方。
根据拿地要求,项目需引入1家以上(含1家)国际性金融服务企业的中国区域总部,引入3家以上(含3家)全国性或区域性金融服务机构。
▲伟鹏万科·御玺滨江(一、二期,住宅)效果图
武汉国华金融中心
地块编号:P(2016)158
拿地时间:2017年1月24日
楼面地价:8106元/㎡
▲地块规划用地范围
项目投资约100亿元,净用地面积约6.51万方,总建筑面积约40.24万平方米,建设涵盖商业综合体、五星级酒店、5A级办公写字楼、高端单元式办公、文化建筑的地标性商业集群,包含两栋高度分别为270米、近500米的超高层商务办公大楼。其中住宅建筑面积9.98万方共378套,商务商业建筑面积26.36万方。
项目为国华人寿在全国布局的第四座国华金融中心,也是国华人寿全国总部落户武汉后投资建设的首个大型商业综合体项目。根据拿地要求,项目需承诺引入不少于3家“一行三会”颁发经营许可证的全国性金融机构的区域总部或控股子公司,引进至少一家世界500强中的金融机构的区域总部。
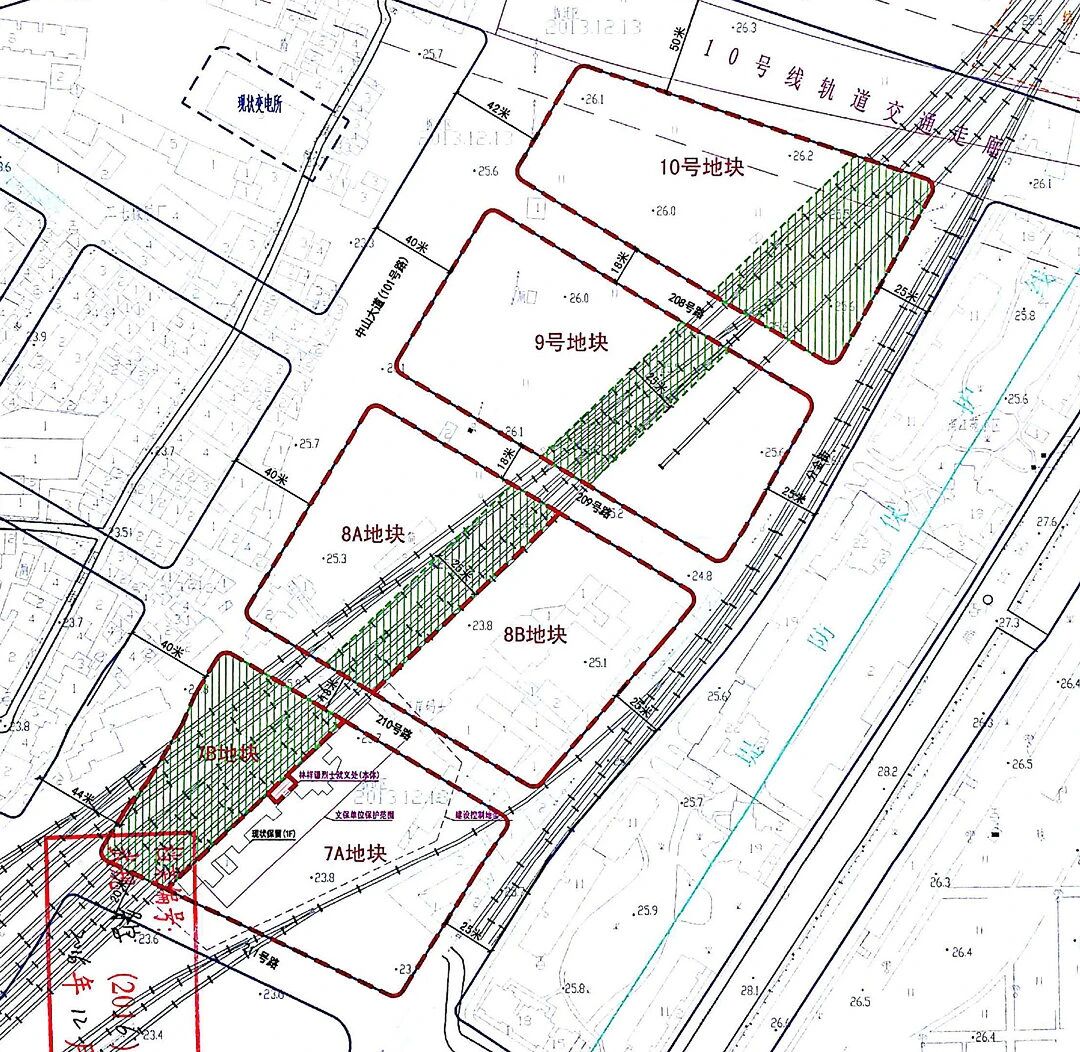
▲武汉国华金融中心(7A、7B、8B号地块)效果图
▲武汉国华金融中心(塔楼)效果图(未报规)
中信泰富滨江金融城
地块编号:P(2017)009
拿地时间:2017年2月7日
楼面地价:8457元/㎡
▲地块规划用地范围
P(2017)009号地块为二七滨江商务区推地以来出让的最大地块,净用地总面积约22.9万方,总建筑面积约117.3万方,包括居住38.64万方,商业和商务74.31万方,文化设施及配套3万方,学校1.35万方,该项目是二七滨江商务区最大的综合体项目,其开发水平一定程度上决定了二七滨江商务区的产业集群和综合配套水平。
根据拿地要求,项目需引入6家以上(含6家)取得“一行三会”所颁发的金融许可证的全国性保险公司等金融机构的区域总部,引入世界500强企业2家以上(含2家)的区域总部。14A、14B、14C、17、18、19号等6宗地块规划打造国际总部大楼集聚区,商业、商务总建筑规模52.4万平方米。
同时要求项目结合地块内商务楼宇设置多层公共架空平台与绿地连接,构建立体开放空间,与树桥、轨道站点、周边地块及江滩连接,组建成核心区空中步行连廊,建成后需向公众开放。
▲中信泰富滨江金融城效果图
泰康在线总部大厦
地块编号:P(2017)026
拿地时间:2017年3月21日
楼面地价:7489元/㎡
▲地块规划用地范围
项目规划用地面积1.56万方,总建筑面积26.9万方,包括14.99万方甲级写字楼,0.9万方商业和4.02万方酒店。
项目由扎哈·哈迪德建筑师事务所设计,249.9米高的大厦由3栋49-55层塔楼围合组成,并在29、40层设有空中连廊,楼间距达240米,中间约200米高的共享中庭,形成一个社区式的内部城市空间。
▲泰康在线总部大厦效果图
中诚信征信总部大厦(及配套住宅)
地块编号:P(2018)023
拿地时间:2018年3月20日
楼面地价:12347元/㎡
▲地块规划用地范围
项目净用地总面积2.22万方,计容建筑面积10.2万方,其中P5地块建筑面积约7.64万方,计容建筑面积约5.30万方,规划1栋117.65米的办公楼,以高起点、高标准打造中诚信集团征信业务总部,并引入旗下企业征信与个人征信业务大数据信息中心与运营中心、资信评级业务平台等。P8地块为配套住宅,建筑面积不大于4.9万方。
按照拿地要求,项目所有商业面积需用于1家(含1家)以上经中国人民银行批准的允许开展个人征信业务(准备)工作的全国性征信公司总部,以及不少于3家金融服务及信用信息服务行业的具备独立核算条件的全国性或区域性总部机构办公;并需按照“商业商务用地与住宅用地同时开发”的时序进行建设,且住宅用地不得先于商业商务用地开发。
▲中诚信征信总部大厦(P5地块)效果图
华讯科技金融城(中海长江十里)
地块编号:P(2018)099
拿地时间:2018年10月31日
楼面地价:12804.41元/㎡
▲地块规划用地范围
项目包括1栋办公楼和2栋住宅楼,其中P7地块为商业与办公,建筑面积约9.20万方,P10地块为住宅(中海长江十里),建筑面积约5.16万方。据称项目建成后将作为华讯方舟集团华中区域总部、金融业务总部的主要载体,建立涉及超高频卫星通信、太赫兹等领域的科技产业链,并依托华讯方舟集团金融业务架构开展金融租赁、基金服务和供应链服务。
根据拿地要求,项目商服建筑面积需主要用于区政府认可的1家及以上重点发展太赫兹技术、卫星通讯技术及相关配套产业的区域性总部机构,以及1家及以上经中国银行保险监督管理委员会批准的金融租赁公司的区域性总部机构;并且商服部分开发建设时间不晚于住宅部分开发时间。
▲中海二七滨江效果图
武建光彩国际城
地块编号:P(2019)135
拿地时间:2019年10月22日
楼面地价:10558.48元/㎡
▲地块规划用地范围
项目地上规划总用地面积2.19万方,P2地块建筑面积8.77万方,包括居住1.60万方,办公及商业4.79万方;P4地块建筑面积10.66万方,计容建筑面积约7.83万方,主要为办公、酒店及商业。
根据拿地要求,项目需引进供应链金融企业不少于3家入驻,其中至少有1家为国际性供应链金融企业,引进3家以上主板(不含新三板)上市公司、大型企业集团或跨国公司区域总部入驻。
▲武建光彩国际城效果图
04
近期新推地块
二七桥头门户区地块/头道街准地王住宅地块
P(2019)148号地块,是江岸区滨江国际商务区五期P12-1地块,起拍价28亿元,起始楼面地价约11518.85元/㎡。该宗地块是武汉土地交易市场首度公开采用“用地预申请”模式的地块,最初编号为P(2019)041号,于2019年4月30日挂牌出让,随后延期至5月30日,后又延期至6月28日,但依然流拍;2019年9月11日该地块网上挂牌,再次因无人报价流拍。
▲P(2019)148号地块规划用地范围
地块拿地要求最大地上计容建筑面积控制在24.3万方以内,其中商业服务业建筑面积不超过18.6万方,居住建筑面积不超过5.7万方;公建塔楼建筑高度不低于270米;配件幼儿园、养老设施;又因为紧邻二七长江大桥,要求建设桥头公园,并对建筑形态与布局等有一定要求。
在最初的出让文件中,还要求商服建筑面积主要用于一家及以上控股股东为2018年《财富》世界500强的工程与建筑企业省级总部;引进不少于1家500强企业华中区域总部入驻;持有不低于整个项目商业、商务及办公总面积40%的物业,自持物业5年内不得对外销售。这些要求后在9月11日出让时删除。
P(2020)122号地块,位于江岸区解放大道与头道街交汇处,用地性质为居住用地、公园绿地,起拍价43亿元,起始楼面价将超过2万元/㎡,据说已被多家房企关注,极有可能刷新武汉单价地王。
▲P(2020)122号地块规划用地范围
- END -
下一篇:返回列表
友情链接|宝骐机构|宝骐广告|宝骐会展 联系电话:027-87712600
公司地址:武汉市武昌区体育馆路2号新凯大厦五层  鄂ICP备16024575号 
鄂公网安备 42010602000539号
        
		
























